XELEST . CONDOMINAL

Playa del Carmen, QRoo.

Análisis de contexto, diseño, representación arquitectónica.

NACHI COCOM . CONDOMINAL

Cozumel, QRoo.

Análisis de contexto, diseño, representación arquitectónica.

DPTO. BAY VIEW GRAND

Z.H. Cancún, QRoo.

Diseño de interiores, ejecución de acabados, ingenierías, carpinterías, amueblado, proyecto de iluminación.

SLS HARBOUR BEACH

Cancún , QRoo.

Remodelación de muros, acabados e ingenierías.

PENTHOUSE LAS OLAS

Z.H. Cancún, QRoo.

Ejecución de acabados e ingenierías.

ACENTO PLAYA

Playa del Carmen, QRoo.

Ejecución de obra civil, ingenierías, acabados, carpinterías, cancelería.

NO AR TULUM

Tulum , QRoo.

Análisis de contexto, diseño arquitectónico.

CANCÚN

Cancún , QRoo.

Análisis urbano, representación arquitectónica.

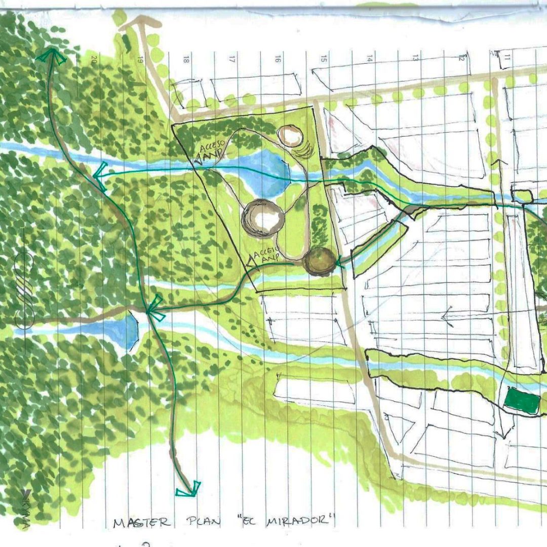
ACADEMIA E INVESTIGACIÓN

 

Análisis urbano, representación arquitectónica.

Copyright © 2022 Territorial Arquitectos. Todos los derechos reservados